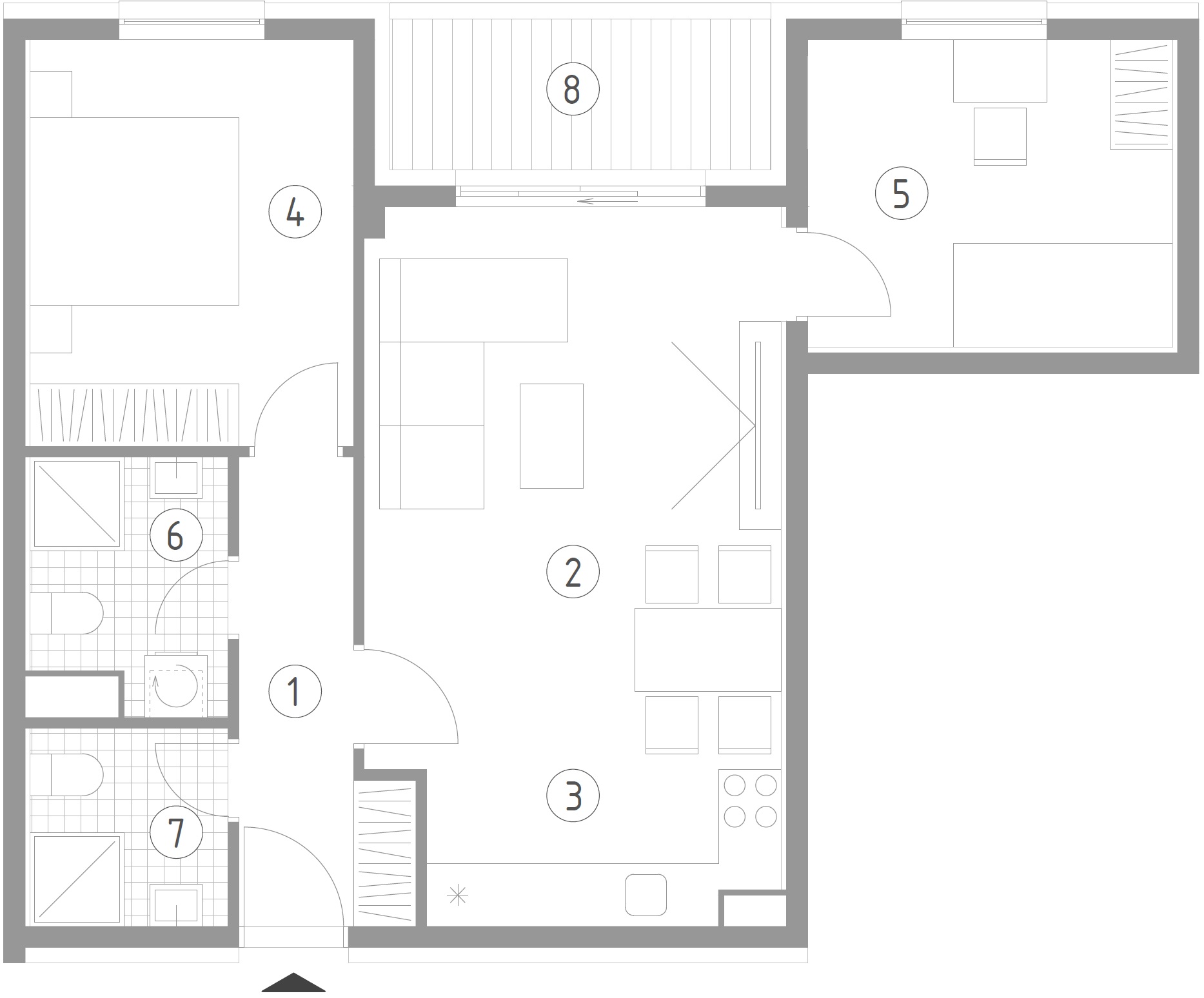
| Prostorija | Neto površina (m2) | Koeficijent | Prodajna površina (m2) | |
|---|---|---|---|---|
| 1 | Hodnik | 6.23 | 1 | 6.23 |
| 2 | Dnevni boravak i blagovaonica | 22.09 | 1 | 22.09 |
| 3 | Kuhinja | 4.96 | 1 | 4.96 |
| 4 | Spavaća soba 1 | 12.27 | 1 | 12.27 |
| 5 | Spavaća soba 2 | 10.48 | 1 | 10.48 |
| 6 | Kupaonica 1 | 3.66 | 1 | 3.66 |
| 7 | Kupaonica 2 | 4.41 | 1 | 4.41 |
| Ukupno zatvoreni | 64.1 | 64.1 | ||
| 8 | Loggia | 5.38 | 0.75 | 4.04 |
| 9 | Spremište SP305 | 1.48 | 0,50 | 1.48 |
| SVEUKUPNO | 70.96 | 69.62 |
