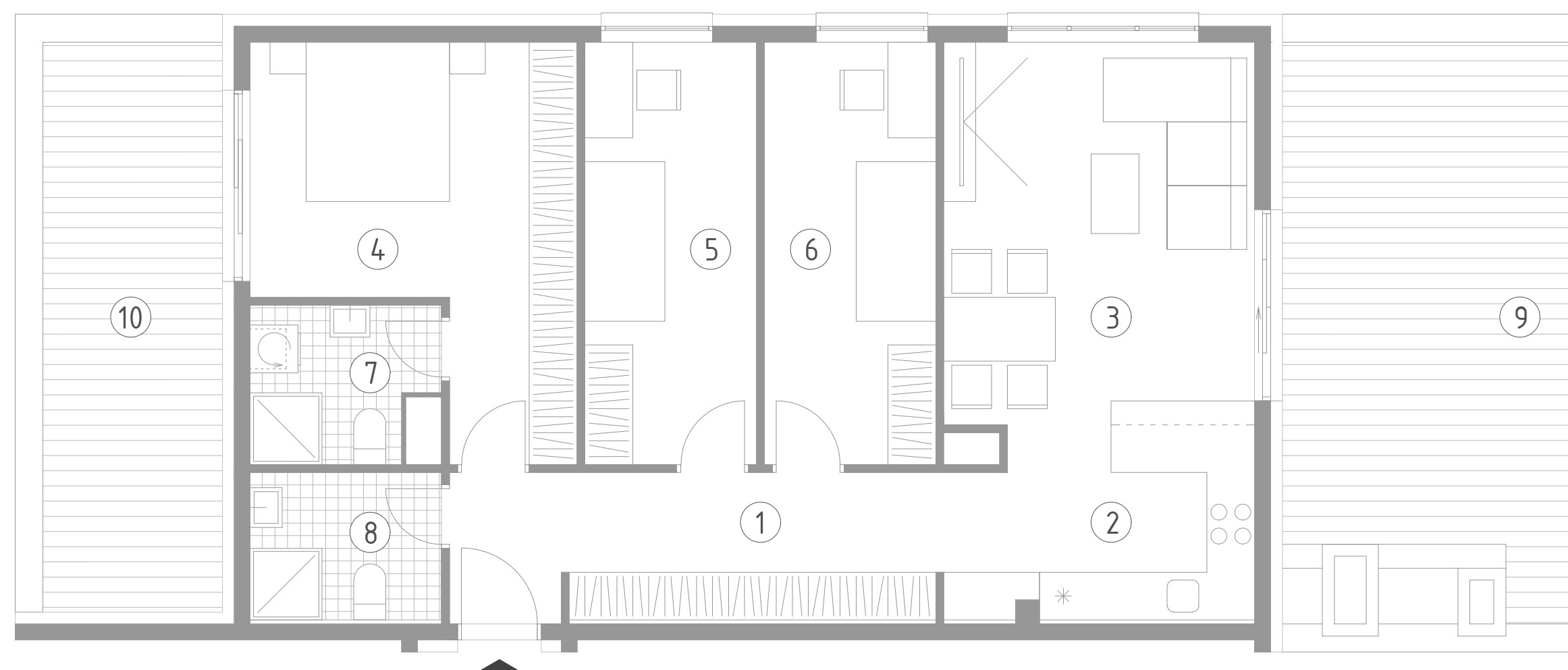
| Prostorija | Neto površina (m2) | Koeficijent | Prodajna površina (m2) | |
|---|---|---|---|---|
| 1 | Hodnik | 11.95 | 1 | 11.95 |
| 2 | Dnevni boravak i blagovaonica | 19.23 | 1 | 19.23 |
| 3 | Kuhinja | 8.89 | 1 | 8.89 |
| 4 | Spavaća soba 1 | 16.81 | 1 | 16.81 |
| 5 | Spavaća soba 2 | 11.57 | 1 | 11.57 |
| 6 | Spavaća soba 3 | 11.57 | 1 | 11.57 |
| 7 | Kupaonica 1 | 4.42 | 1 | 4.42 |
| 8 | Kupaonica 2 | 4.51 | 1 | 4.51 |
| Ukupno zatvoreni | 88.95 | 88.95 | ||
| 9 | Terasa 1 | 47.1 | 0.25 | 11.78 |
| 10 | Terasa 2 | 16.32 | 0.25 | 4.08 |
| 11 | Spremište SP304 | 1.36 | 0,50 | 1.36 |
| SVEUKUPNO | 153.73 | 106.17 |
