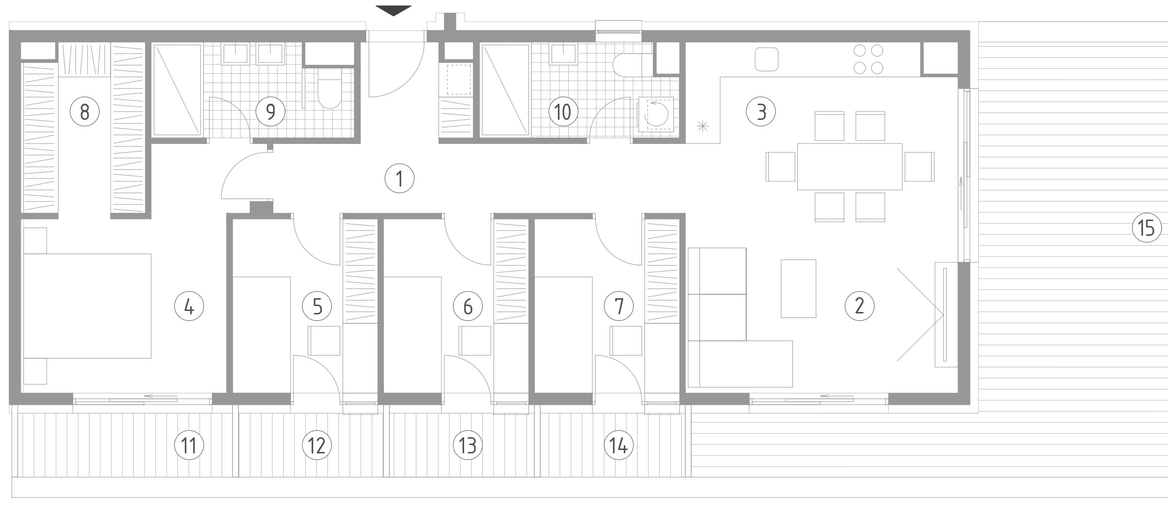
| Prostorija | Neto površina (m2) | Koeficijent | Prodajna površina (m2) | |
|---|---|---|---|---|
| 1 | Hodnik | 12.28 | 1 | 12.28 |
| 2 | Dnevni boravak i blagovaonica | 20.3 | 1 | 20.3 |
| 3 | Kuhinja | 7.9 | 1 | 7.9 |
| 4 | Spavaća soba 1 | 13.34 | 1 | 13.34 |
| 5 | Spavaća soba 2 | 7.61 | 1 | 7.61 |
| 6 | Spavaća soba 3 | 7.61 | 1 | 7.61 |
| 7 | Spavaća soba 4 | 7.61 | 1 | 7.61 |
| 8 | Garderoba | 6.07 | 1 | 6.07 |
| 9 | Kupaonica 1 | 5.5 | 1 | 5.5 |
| 10 | Kupaonica 2 | 5.45 | 1 | 5.45 |
| Ukupno zatvoreni | 93.67 | 93.67 | ||
| 11 | Terasa 1 | 4.13 | 0.25 | 1.03 |
| 12 | Terasa 2 | 2.79 | 0.25 | 0.70 |
| 13 | Terasa 3 | 2.79 | 0.25 | 0.70 |
| 14 | Terasa 4 | 2.79 | 0.25 | 0.70 |
| 15 | Terasa 5 | 49.99 | 0.25 | 12.50 |
| 16 | Spremište SP303 | 1.4 | 0,50 | 1.40 |
| SVEUKUPNO | 157.56 | 110.69 |
