| Prostorija | Neto površina (m2) | Koeficijent | Prodajna površina (m2) | |
|---|---|---|---|---|
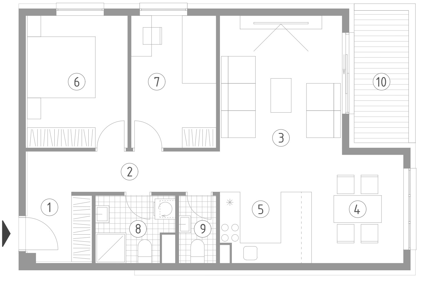
| 1 | Ulaz | 3.69 | 1 | 3.69 |
| 2 | Hodnik | 7.36 | 1 | 7.36 |
| 3 | Dnevni boravak | 18 | 1 | 18 |
| 4 | Kuhinja | 5.54 | 1 | 5.54 |
| 5 | Blagovaonica | 8.77 | 1 | 8.77 |
| 6 | Spavaća soba 1 | 11.67 | 1 | 11.67 |
| 7 | Spavaća soba 2 | 9.9 | 1 | 9.9 |
| 8 | Kupaonica | 4.36 | 1 | 4.36 |
| 9 | WC | 2.23 | 1 | 2.23 |
| Ukupno zatvoreni | 71.52 | 71.52 | ||
| 10 | Balkon | 6.33 | 0.5 | 3.17 |
| 11 | Spremište SP204 | 1.36 | 0,50 | 1.36 |
| SVEUKUPNO | 79.21 | 76.05 |
