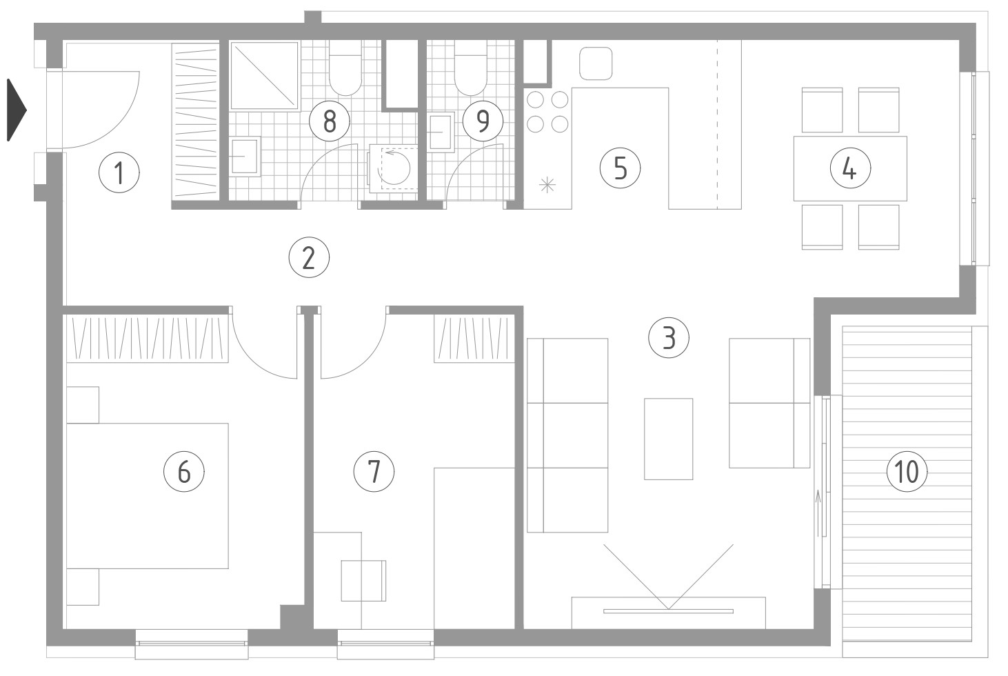
| Prostorija | Neto površina (m2) | Koeficijent | Prodajna površina (m2) | |
|---|---|---|---|---|
| 1 | Ulaz | 3.76 | 1 | 3.76 |
| 2 | Hodnik | 7.36 | 1 | 7.36 |
| 3 | Dnevni boravak | 18 | 1 | 18 |
| 4 | Kuhinja | 5.54 | 1 | 5.54 |
| 5 | Blagovaonica | 8.77 | 1 | 8.77 |
| 6 | Spavaća soba 1 | 11.58 | 1 | 11.58 |
| 7 | Spavaća soba 2 | 9.9 | 1 | 9.9 |
| 8 | Kupaonica | 4.36 | 1 | 4.36 |
| 9 | WC | 2.23 | 1 | 2.23 |
| Ukupno zatvoreni | 71.5 | 71.5 | ||
| 10 | Balkon | 6.33 | 0.5 | 3.17 |
| 11 | Spremište SP201 | 1.24 | 0,50 | 1.24 |
| SVEUKUPNO | 79.07 | 75.91 |
