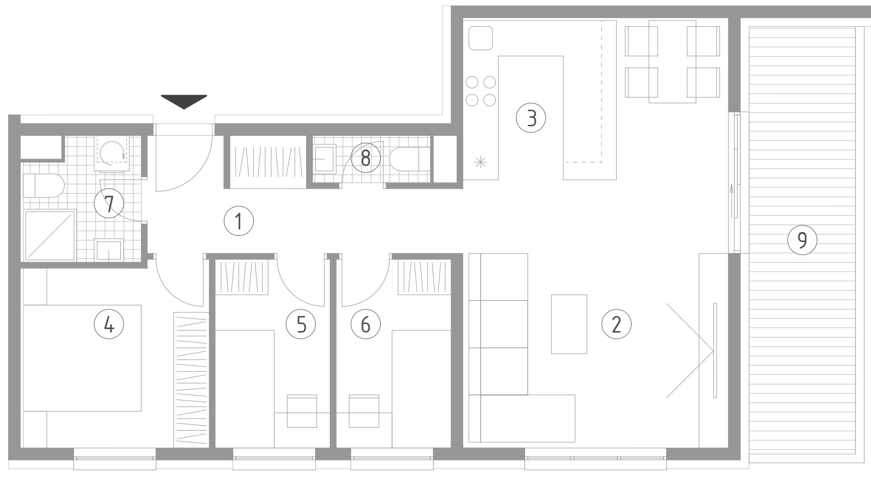
| Prostorija | Neto površina (m2) | Koeficijent | Prodajna površina (m2) | |
|---|---|---|---|---|
| 1 | Hodnik | 8.38 | 1 | 8.38 |
| 2 | Dnevni boravak i blagovaonica | 25.98 | 1 | 25.98 |
| 3 | Kuhinja | 7.13 | 1 | 7.13 |
| 4 | Spavaća soba 1 | 9.91 | 1 | 9.91 |
| 5 | Spavaća soba 2 | 6.33 | 1 | 6.33 |
| 6 | Spavaća soba 3 | 6.33 | 1 | 6.33 |
| 7 | Kupaonica 1 | 4.05 | 1 | 4.05 |
| 8 | Kupaonica 2 | 1.99 | 1 | 1.99 |
| Ukupno zatvoreni | 70.1 | 70.1 | ||
| 9 | Balkon | 13.25 | 0.5 | 6.63 |
| 10 | Spremište SP001 | 2.82 | 0,50 | 1.41 |
| SVEUKUPNO | 86.17 | 78.14 |
