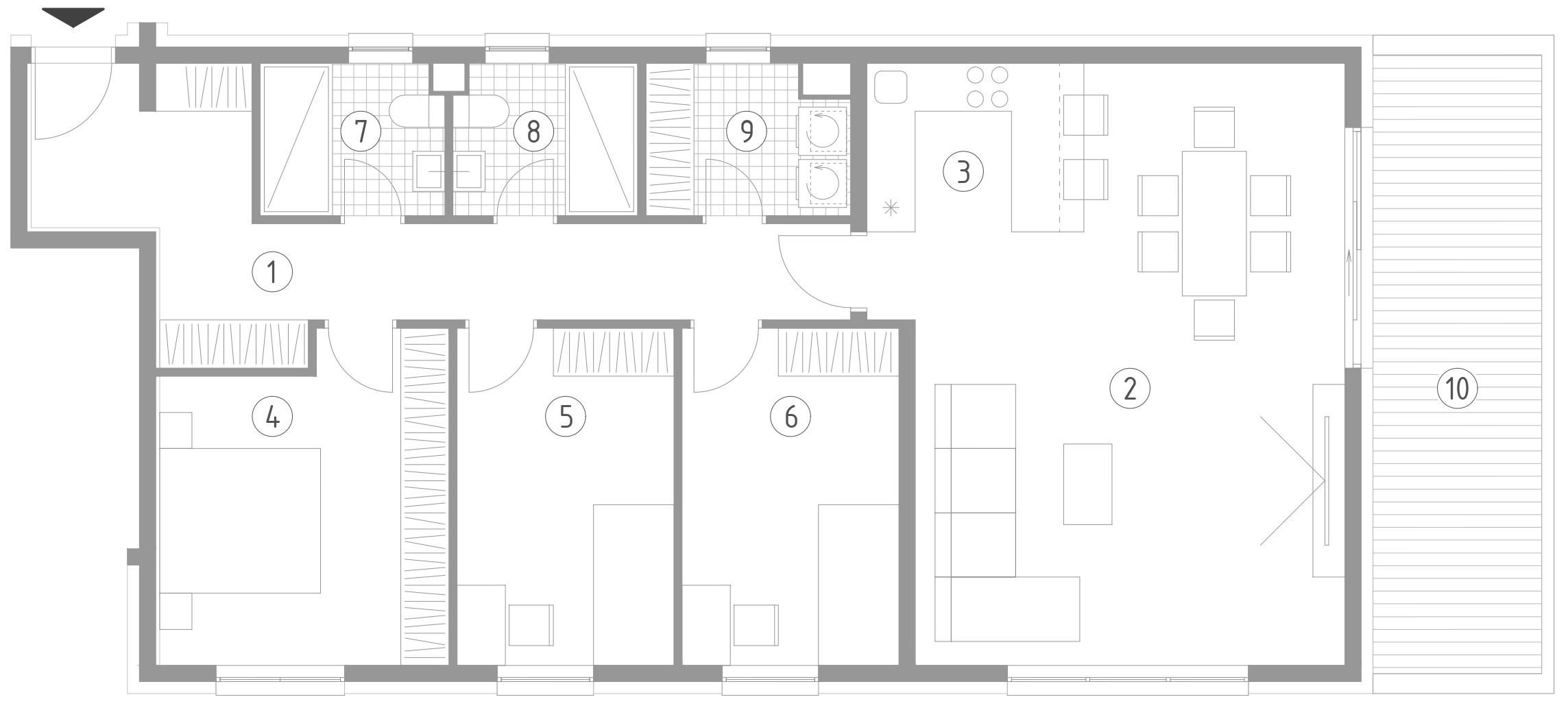
| Prostorija | Neto površina (m2) | Koeficijent | Prodajna površina (m2) | |
|---|---|---|---|---|
| 1 | Hodnik | 17.66 | 1 | 17.66 |
| 2 | Dnevni boravak i blagovaonica | 35.84 | 1 | 35.84 |
| 3 | Kuhinja | 7.03 | 1 | 7.03 |
| 4 | Spavaća soba 1 | 14.16 | 1 | 14.16 |
| 5 | Spavaća soba 2 | 11.51 | 1 | 11.51 |
| 6 | Spavaća soba 3 | 11.51 | 1 | 11.51 |
| 7 | Kupaonica 1 | 4.35 | 1 | 4.35 |
| 8 | Kupaonica 2 | 4.35 | 1 | 4.35 |
| 9 | Praonica | 4.62 | 1 | 4.62 |
| Ukupno zatvoreni | 111.03 | 111.03 | ||
| 10 | Balkon | 16.41 | 0.5 | 8.21 |
| 11 | Spremište SP102 | 1.24 | 0,50 | 1.24 |
| SVEUKUPNO | 128.68 | 120.48 |
