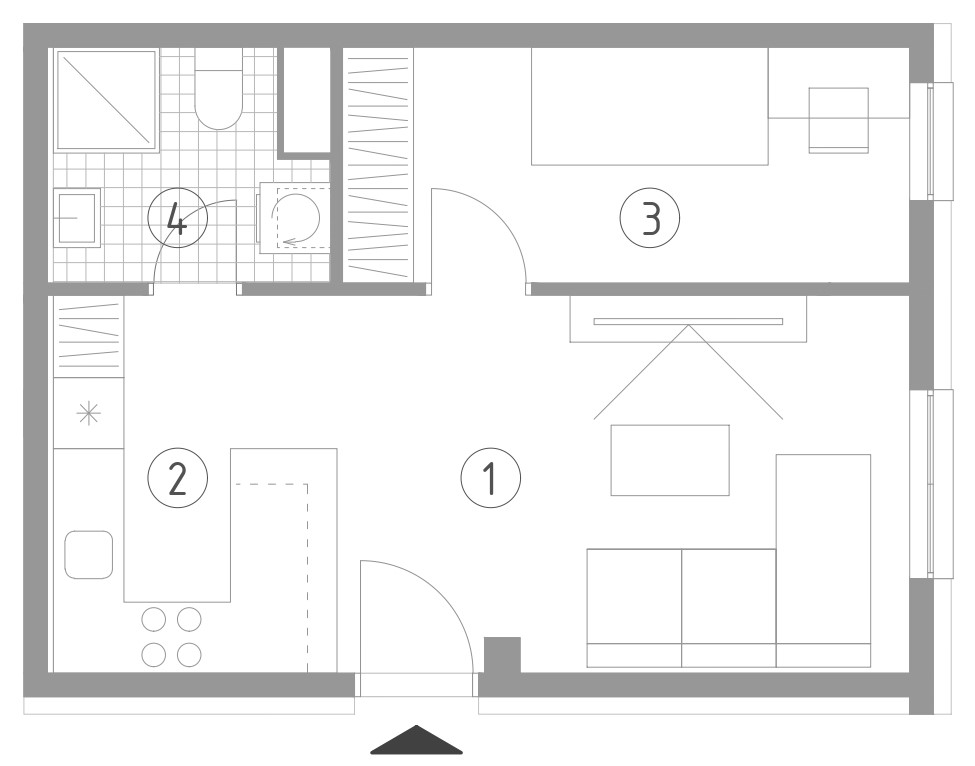
Prostorija Neto površina (m2) Koeficijent Prodajna površina (m2) 1 Dnevni boravak i blagovaonica 15.75 1 15.75 2 Kuhinja 7.88 1 7.88 3 Spavaća soba 9.74 1 9.74 4 Kupaonica 4.33 1 4.33 Ukupno zatvoreni 37.7 37.7 5 Vanjsko parkirno mjesto VPM1 12.87 0,25 3.22 SVEUKUPNO 50.57 40.92 Preuzmite specifikacije stana