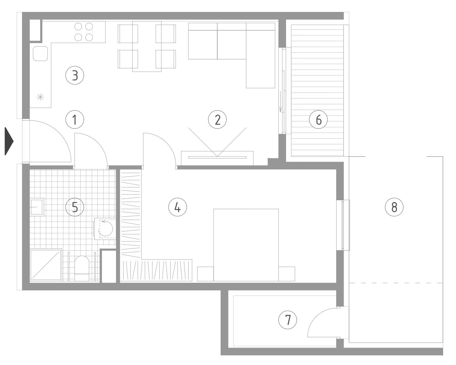
| Prostorija | Neto površina (m2) | Koeficijent | Prodajna površina (m2) | |
|---|---|---|---|---|
| 1 | Ulaz | 3.57 | 1 | 3.57 |
| 2 | Dnevni boravak i blagovaonica | 19.02 | 1 | 19.02 |
| 3 | Kuhinja | 5.15 | 1 | 5.15 |
| 4 | Spavaća soba | 18.98 | 1 | 18.98 |
| 5 | Kupaonica | 7.24 | 1 | 7.24 |
| Ukupno zatvoreni | 53.96 | 53.96 | ||
| 6 | Loggia | 5.38 | 0.75 | 4.04 |
| 7 | Spremište SP001 | 3.99 | 0,50 | 2.00 |
| 8 | Vanjsko parkirno mjesto VPM3 | 13.39 | 0,25 | 3.35 |
| SVEUKUPNO | 76.72 | 63.34 |
